Passer au contenu principal
Logo GMC

GMC CSR - BASIC LINE - FILTRES À CARTOUCHE SOLIDE MÉCANIQUE REMPLAÇABLE

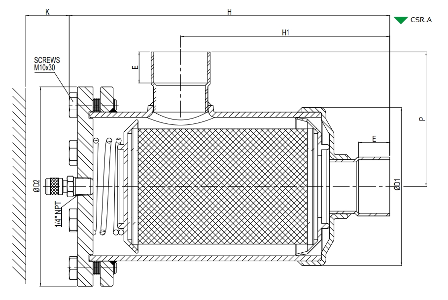
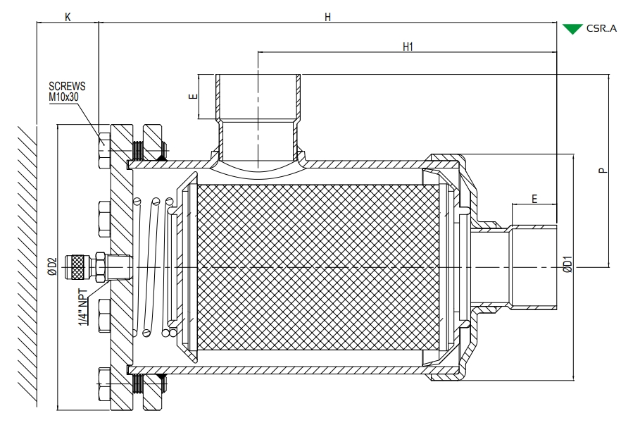
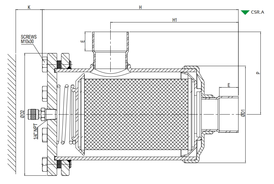
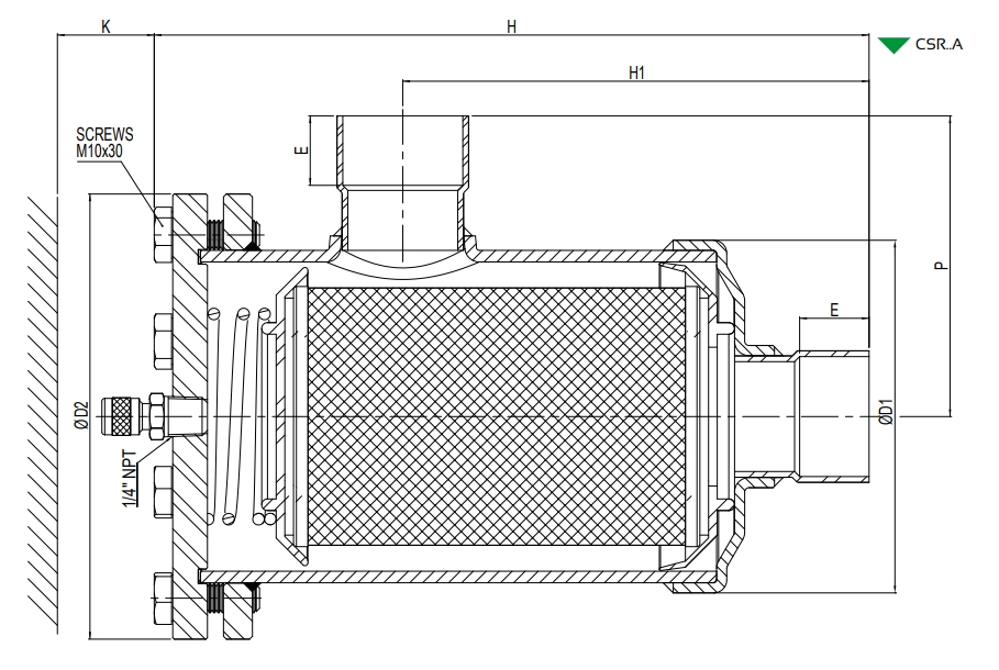
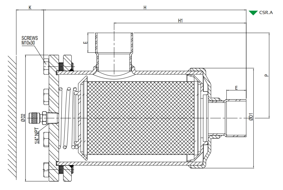
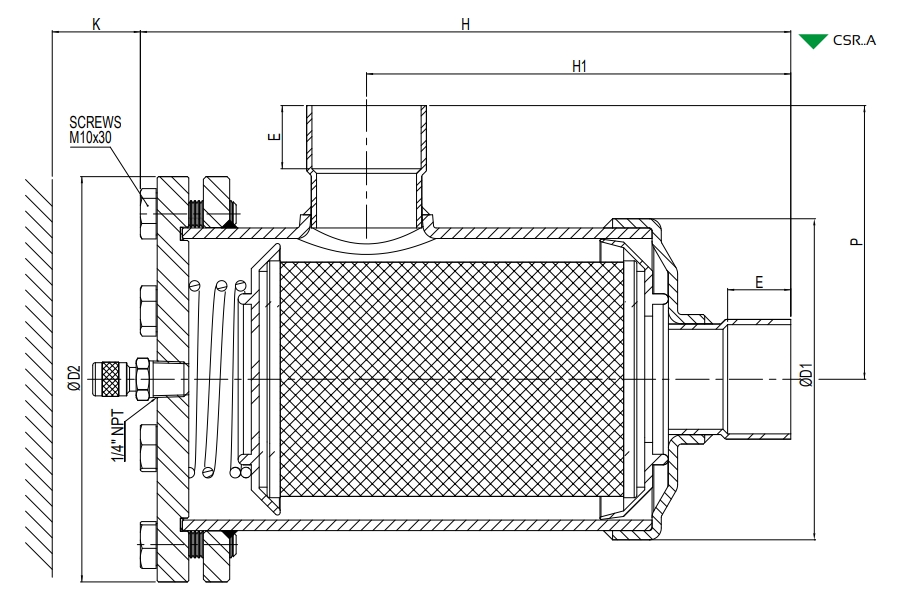
Domaine d’application :

Les filtres à cartouche mécanique remplaçable sont considérés comme des "récipients" selon la directive PED 2014/68/UE, destinés à l’utilisation avec des fluides du Groupe 2 (non toxiques, non inflammables, non explosifs), y compris les fluides frigorigènes (Groupe A1 selon EN 378-1). Ils sont conçus pour être installés sur la ligne d’aspiration avec des cartouches MFC, qui permettent une microfiltration efficace afin de protéger les compresseurs contre les impuretés résiduelles.

Construction :

Les filtres sont fabriqués en acier, avec des raccords en tube de cuivre EN 12735-1 (Cu-DHP) ou en acier sans soudure St52, et assemblés par soudure MIG. Pour garantir une résistance aux agents oxydants, des vis en acier inoxydable A2-70 sont utilisées. Chaque filtre est équipé d’une contre-bride percée 1/4" NPT pour l’ajout d’un bouchon aveugle ou d’un raccord de charge, offrant une flexibilité d’installation.

Cartouche mécanique :

La cartouche possède une surface filtrante composée d’un treillis métallique, d’une tôle perforée et d’un matériau poreux, capable de retenir les particules de taille supérieure ou égale à 20 microns. Elle est fournie avec des joints pour l’assemblage avec les godets en plastique du groupe filtrant.

Installation :

Il est conseillé de positionner les filtres en tenant compte de la distance ‘K’ afin de faciliter l’extraction des cartouches. Il est essentiel de programmer un entretien régulier pour assurer le bon fonctionnement du système.

 


  • Données techniques
  • Documents
  • Téléchargements

Données techniques


Documenti

  • Code article
  • Description
  • Nombre de tubes
  • Cartouche mécanique
  • Diamètre extérieur ODS [in] [mm]
  • Température de fonctionnement (TS) [°C]
  • Pression de fonctionnement (PS) [bar]
  • Dimensions [mm] ØD1
  • Dimensions [mm] ØD2
  • Dimensions [mm] H
  • Dimensions [mm] H1
  • Dimensions [mm] P
  • CHF brut par pce. CHF net par pce.

neno-live-stock.textAvailable

CSR487A
FILTRE À CARTOUCHE D'ASPIRATION 7/8 ''
1
MFC48 - MFC48S
7/8"22
-40 ÷ +80
45
122
154
239
153
93

207,37 CHF*
Pz

neno-live-stock.textAvailable

CSR489A
FILTRE À CARTOUCHE D'ASPIRATION 1 1/8 ''
1
MFC48 - MFC48S
1.1/8"-
-40 ÷ +80
45
122
154
244
158
98

207,37 CHF*
Pz

neno-live-stock.textAvailable

CSR4811A
FILTRE À CARTOUCHE D'ASPIRATION 1 3/8 ''
1
MFC48 - MFC48S
1.3/8"35
-40 ÷ +80
45
122
154
244
158
98

213,08 CHF*
Pz

neno-live-stock.textBackorder

CSR4813A
FILTRE À CARTOUCHE D'ASPIRATION 1 5/8 ''
1
MFC48 - MFC48S
1.5/8"-
-40 ÷ +80
45
122
154
249
163
103

221,14 CHF*
Pz

neno-live-stock.textBackorder

CSR4817A
FILTRE À CARTOUCHE D'ASPIRATION 2 1/8 ''
1
MFC48 - MFC48S
2.1/8"54
-40 ÷ +80
45
122
154
261
175
115

229,84 CHF*
Pz

neno-live-stock.textBackorder

CSR4821A
FILTRE À CARTOUCHE D'ASPIRATION 2 5/8"
1
MFC48 - MFC48S
2.5/8"-
-40 ÷ +80
45
122
154
261
175
115

252,45 CHF*
Pz